图知网
搜索
首页
热门推荐
图片分类
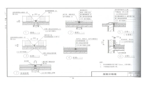
11zj201平屋面图集
下载原图
相关图片
11zj201图集免费下载相关软件电脑版相关 >标签:11zj201图集免费下载
11zj201平屋面图集
11zj201平屋面图集
11zj201平屋面图集
中南标11zj201图集
[资料]11zj201 平屋面(图集)
为你推荐
民族服装儿童台湾阿里山高山族演出演出服服饰男女女童儿童演出服
方媛挺肚抱兔兔拜年疑怀3胎|马|古驰|怀孕|驯养动物|粤语歌曲_网易
玉化绿松石龙牌
张韶涵《隐形的翅膀》尤克里里谱-c调完整弹唱谱
创意美术
华为honor荣耀畅玩8a珍珠全面屏609英寸震撼大音量双卡双待老人学生
郑
红包送你大红包女孩人物表情包动图gif