图知网
搜索
首页
热门推荐
图片分类
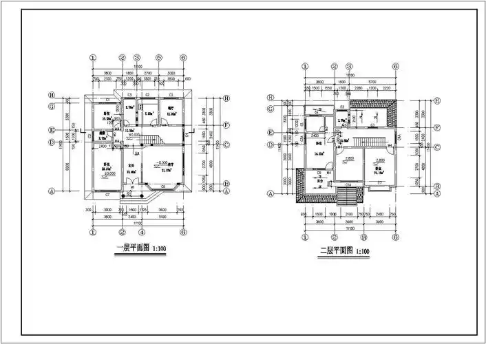
教学楼建筑图(作业)第一次(一层平面图)答案
下载原图
相关图片
某地区仿古别墅建筑设计cad图纸全套
8层简单小型办公楼建筑平面图长315米宽114米
建筑工程实习作品 六层住宅小建筑 六张建筑平面图
平面 图
某地精美简单的小型别墅建筑设计方案图
首层100平方米2层农村民房方案4建筑结构 model (1)
为你推荐
头像卡通女呆萌可爱少女心111张_女生动漫头像_头像屋
我能亲你一口吗就一口情侣互撩表情包我能亲你一口吗67亲亲撩妹撩汉
天生就有贵气的面相女人
这个人是谁 出自哪
美人心计 鲁元公主 吕佳容 发型
大宋将军何灌:敌军以为他徒有虚名,再一看却是箭无虚发连忙退兵_射箭
谢谢 我爱大家!
折一只仓鼠