图知网
搜索
首页
热门推荐
图片分类
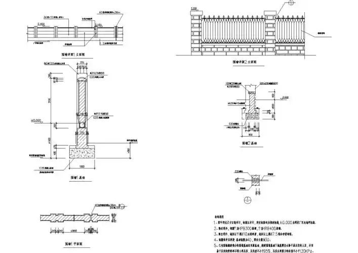
铁艺围墙详图纸(含结构)- 小品及配套设施施工图图纸 - 沐风网
下载原图
相关图片
围墙
22围墙结构图
院墙砖瓦围墙矮墙美丽乡村振兴设计cad施工图做法详图大样dwg图纸
某通透围墙cad施工图设计
某小区围墙设计做法详图
一个开发商要的,看房通道!围墙施工图,含配筋!
为你推荐
紫色系女生头像90 #女生头像# #紫色系头像# #头像分享
教你这样画小女孩
灰色的不同灰度,与其对色的协调搭配,避免了色彩的单一也使得墙面色彩
《夜莺与玫瑰》童话世界的婚礼——双笙(纯白)
【深圳线下】生活的正念 mindfulness for life 八周课程招生 - 知乎
tears-岚双手简谱预览1
一,购房发票
杰佣