图知网
搜索
首页
热门推荐
图片分类
光遇1117花环复刻部分饰品搭配
下载原图
相关图片
【sky光遇】发型还原|双丸子哪吒头|双丫髻|高马尾|低配cos|伪教程
光遇丸子头头像来啦
sky光遇
sky光遇 #光遇白鸟 #光遇脏辫
麻花#光遇 #光遇麻花辫
春丽丸子头 墨镜面具 风行季三片羽毛双边发饰 彩虹斗篷 雪裤=新式
为你推荐
王一博这优越的9199啊!鼻子在面相中代表的是一个人的福气与财运.
黑白色的改变,是坚持与努力
床头灯在黑暗的夜晚卧室明亮
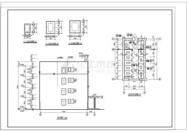
某学校教学楼卫生间大样图
用了一年的鱼缸居然裂了
山河令美女多多艳鬼耐看顾湘意难平毒菩萨身材让人垂涎
free lucky钢琴谱 98
水塔水箱水泵液位开水满自停器4分全自动水箱水位浮球阀浮球开关mc152