图知网
搜索
首页
热门推荐
图片分类
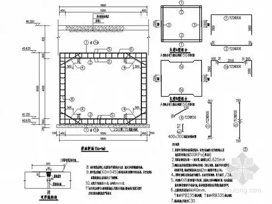
箱涵标准断面配筋图
下载原图
相关图片
净空523m箱涵设计及配筋图
现浇箱涵剖面及配筋图
箱涵配筋图cad
[湖北]高速公路盖板涵及双孔箱涵图纸33张(知名大院)
一级公路工程箱涵节点大样图
箱涵配筋设计详图
为你推荐
hoffen - 博客园
我的真朋友大结局
季后赛低迷刘志轩场均4分稳进国家队,休赛期开串店签代言两不误
终末的女武神:杰克成为代表的原因揭晓,他生前就是一个超级战士
炎亞綸全新e p ★親愛的怪物★ 綸吧團購進行中
这个发射星云的型状与鹈鹕相似,因此得到这个名称.
浙江横店出丰田基先达
魔兽世界泰兰德语风高清壁纸8