图知网
搜索
首页
热门推荐
图片分类
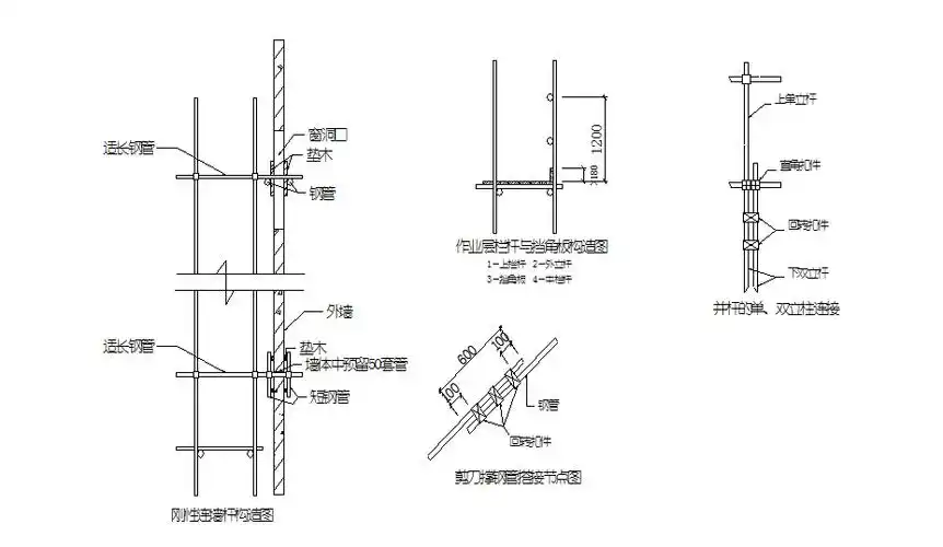
脚手架的主节点
下载原图
相关图片
四川一建考试培训:脚手架搭设,拆除与验收24条
脚手架搭设节点详图
拿来吧你落地式钢管脚手架架体构造及要求
脚手架要点
脚手架节点大样图例
3,在脚手架使用期间,严禁拆除下列杆件: (1)主节点处的纵,横水平杆
为你推荐
2019最伤感的分手说说女生分手伤感说说
比起来一样大小的鸡蛋差20多大卡左右,因为荷包蛋的油挺多的#热量测评
【杨菲洋】谈判官赵晨曦cut22
华为(huawei) 华为nova 8 5g 全网通版 8gb 256gb 亮黑色 麒麟985
原创吴奇隆的困境有多难解54岁的他三年没戏拍只能靠综艺维持热度
动漫情侣头像 男友不是人系列
患者赠骨伤科方剑利医生锦旗一面,感谢信一封
自动挡五菱宏光15年7月份上牌