图知网
搜索
首页
热门推荐
图片分类
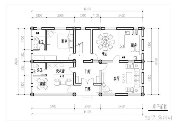
新农村自建房平面图首层138平方米图纸编号a1009_新农村自建房设计图
下载原图
相关图片
15米x11米农村四间两层自建房设计外观造型简洁大方
占地11*11米,六层自建房-全套设计图纸 - 乡村住宅在线
lt067欧式两层经典自建房设计图 - 农村自建房效果图热门推荐_自建
1请问农村自建房施工平面图这样设计合理不农村喜欢卧室朝南所以都
120平方农村自建房设计图标品,三个颜色你喜欢哪个?
才能更加舒适 -别墅设计-乡村房子设计图-农村自建房设计图-轩鼎房屋
为你推荐
高清天空背影头像男 男生头像图片大全 -【爱个性】
钢琴谱:07 山姆_小汤7-约翰·汤普森简易钢琴教程7
来几张jojo壁纸
点亮空间思维济南一中高一数学组举办立体几何模型制作大赛
路虎揽胜四,suv车,日落 壁纸 | 1920x1200 壁纸下载 | cn.best-wallpa
圣约送葬人带队速刷【尘影余音】le-6 3人 明日方舟 信赖攻略
少女前线金色回忆皮肤一览
本田cb1000 hornet米兰车展亮相,四缸街车彻底抛弃复古风格