图知网
搜索
首页
热门推荐
图片分类
带门面的三层别墅设计带地下室
下载原图
相关图片
农村带门面二层自建房设计图平屋顶双拼格局自住出租两不误
农村临街建房有商铺才实用6套带门面别墅户型设计大爱第3套
无论是四间门面,还是两间门面的户型,都是有的哦!
的小别墅图纸设计,其实很早之前小编就分享过一些带门面的别墅户型
果岭湾2室2厅1卫 103m05-v2户型图 - 小区户型图 -躺平设计家
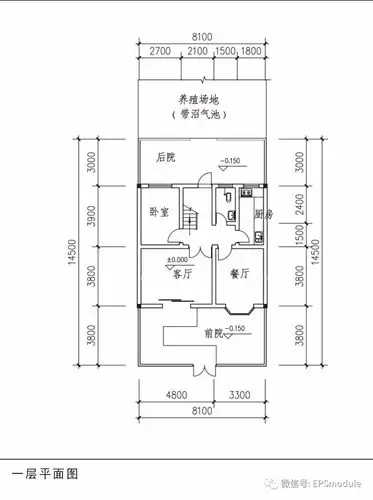
门面宽8.1米*进深14.5米,三层单家独院式
为你推荐
两个人拿着带有巴西国旗背景的生啤酒杯敬酒
史迪仔壁纸满屏,史迪仔高清壁纸
简单画星空如何画星空
印有中华人民共和国居民身份证字样的一面是正面,而有我们的头像
情感电台
诊区包括7间vip诊疗室,2间口腔种植手术室,并有数字化口腔技工室,美学
延庆海坨山
墙面乳胶漆是用滚刷好还是喷涂好请的工人都做错了真是瞎涂