图知网
搜索
首页
热门推荐
图片分类
乌兰图雅.
下载原图
相关图片
乌兰图雅最新证件照
乌兰图雅素颜问早安日常小口胡
网友实在看不下去了:请别继续捆绑抹黑乌兰图雅!
乌兰图雅眼睛整容前后 弯弯眼被疑整容失败素颜被批丑【图】
歌手乌兰图雅穿西装没腰身脸圆润疑发福曾被扎西顿珠当众求婚
乌兰图雅又一波美图来袭,赶快收藏!
为你推荐
墨绿色配什么颜色好看
电影大傻哥从良去当销售竟然拿把刀去可把大妈吓坏了
鲜花边框花朵边框手绘花框矢量边框
潍坊永利山光牌光学合像水平仪hx-1高精度0.01mm/m合相水平仪
惠氏wyeth启赋婴幼儿配方奶粉爱尔兰原装进口蓝钻启赋4段900g4段900g
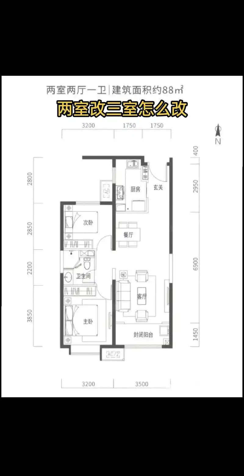
两室改三室怎么改,你学会了吗?
植物装饰变形图案
狐狸写实简笔画