图知网
搜索
首页
热门推荐
图片分类
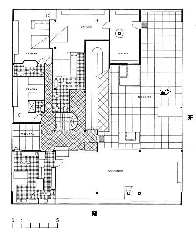
萨伏伊别墅简笔画
下载原图
相关图片
致敬经典no.28→柯布西耶~萨伏伊别墅
萨伏伊别墅手绘
day31萨伏伊别墅巴塞罗那德国馆
萨伏伊别墅
勒柯布西耶作品之萨伏伊别墅
萨伏伊别墅神话背后的现实
为你推荐
小李子颜值巅峰之作边缘日记真的有这样不离不弃的朋友吗
喵~小猫桌面壁纸_可爱壁纸_墨鱼部落格
有哪些可靠的二手闲置物品的交易平台?
王者荣耀 #李白 #碎月剑心 #李白皮肤 - 抖音
表情包emoji喝奶茶表情包
双人瑜伽体式照
com/ 千套别墅设计带别墅图片想建房?却找不到满意的图纸?不用愁!
我来答 分享 微信扫一扫 新浪微博 qq空间 举报 浏览 64 次 5个