图知网
搜索
首页
热门推荐
图片分类
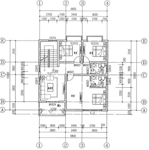
建库图纸提供某三室两厅家庭住宅装修施工图纸供会员免费下载.
下载原图
相关图片
全套别墅设计装修施工图纸
不攀比,80平方米房屋设计图精选,够用,经济就好_盖房知识_图纸之家
乡村自建一层房屋设计图纸-大气实用不输洋别墅!
田园风农村一层小别墅设计图,开间仅9米_一层别墅设计图_图纸之家
背面不开窗,气势上就胜人一筹_二层别墅设计图_图纸之家
盖房知识_图纸之家
为你推荐
陈晓探班陈妍希!
萌系可爱的兔子
长方形和正方形ppt
四大神兽,青龙,朱雀,白虎,玄武的寓意
迷你世界星灵激活码无限使用
《女浩克》带来全新超级英雄——绿巨人布鲁斯·班纳的表妹,女浩克
葫芦岛外海冰封青岛号导弹驱逐舰
还记得获首届钢笔书法特等奖的唯一女性张秀?其毛笔书法亦精彩