图知网
搜索
首页
热门推荐
图片分类
沙滩上的沙雕城堡高清桌面壁纸
下载原图
相关图片
沙滩上的沙雕城堡高清桌面壁纸
沙滩上的沙雕城堡高清桌面壁纸
型月沙雕 - 堆糖,美图壁纸兴趣社区
一起可爱一起沙雕~ - 堆糖,美图壁纸兴趣社区
今日东方沙雕弔图
北境秦王:十三集:全面开战 #虾仁动画 #原创动画 #沙雕动画
为你推荐
海豚!,海豚的水下看摄像机
囚犯或被捕的恐怖分子戴上手铐.照片-正版商用图片170h99-摄图新式珑
肖战武侠古风剧照,陌上人如玉,公子世无双
王安宇换裤子被狗仔拍了发网上这枚宝藏男孩藏不住了
波密排龙天险攻略,波密排龙天险门票/游玩攻略/地址/图片/门票价格
少女前线hk416
文咏珊教你怎么演坏女人
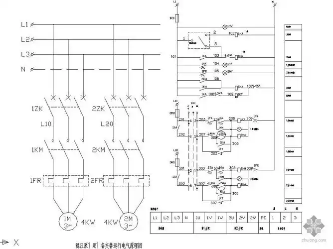
稳压泵(一用一备)控制原理图