图知网
搜索
首页
热门推荐
图片分类
红姬(《死神》浦原喜助的斩魄刀)_360百科
下载原图
相关图片
死神红姬
《死神》尸魂界中最关键三个人物,分别对应三大战力,一护靠边站!
访客(下)
手机网游 死神斩之灵 > 正文 斩魄刀红姬是浦原喜助的斩魄刀.
《死神-斩之灵》斩魄刀揭秘第一弹
红姬
为你推荐
qq飞车手游三宫图
插画小鸡搞笑跳舞可爱斗图gif动图_动态图_表情包下载_soogif
吴奇隆
微信头像大放送91 属虎的小伙伴们,你们的专属微信头像来啦!
none 93简单易学钢琴简谱 五线谱 两只老虎90
单眼皮女生太美!只要有这几点,气质出众辨识度还高,别人都羡慕
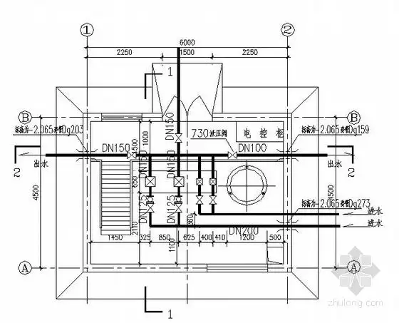
某工程消防泵房给排水设计图
壁纸百事可乐广告