图知网
搜索
首页
热门推荐
图片分类
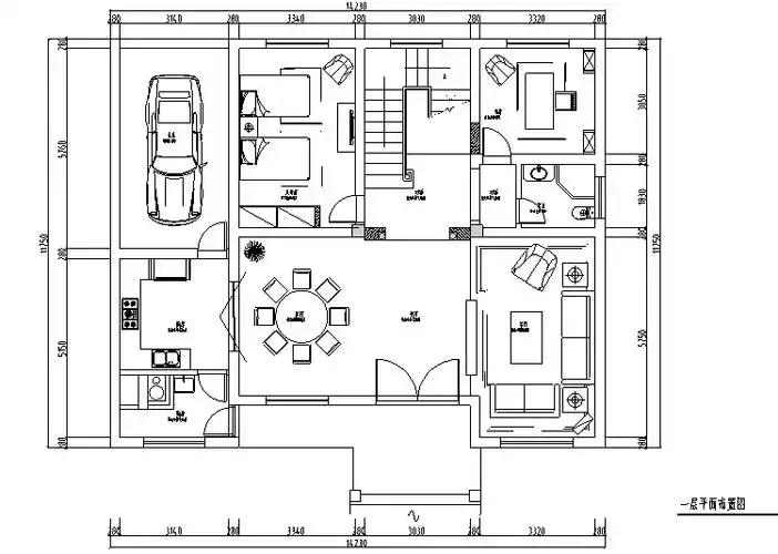
大型豪宅施工图设计家装施工详图新中式风格住宅cad平面布置
下载原图
相关图片
[分享]小型酒店设计cad平面图资料下载
别墅卫生间装修cad资料下载-[成都]中德麓府别墅四合院cad平面图 3d
cad2000本资料为某办公室精装饰装修全套cad施工图纸 办公室平面图
高清cad图纸下载:山区小别墅设计cad施工效果图,获取直接使用
[分享]一套完整室内cad施工图资料下载
三层宿舍楼cad资料下载-三层砌体结构食堂及宿舍楼结构施工图纸
为你推荐
倪妮有什么魅力让他这么疯狂_张艺谋_电影_金陵
手影子图片
任嘉伦李沁请君大婚造型剧照,红色的婚服有点喜庆
中国传统国风仙鹤纹样-手绘装饰图.国潮仙鹤插画图案#图案设计 - 抖音
路上捡到一张1000万的支票经鉴定是真实的你会去取钱吗
祝贺新人结婚的祝福语言怎么写?
工笔画 #工笔画描摹 #白描 #工笔 #竹子找到画面焦点位置,从指缮
如果说雨是思念的眼泪,那么此刻,在雨中