图知网
搜索
首页
热门推荐
图片分类
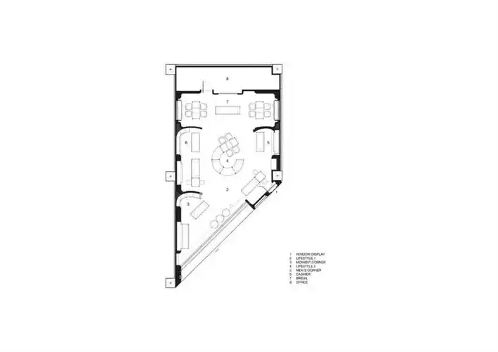
海润珍珠珠宝店 - 商业空间 - 海口室内设计网_海口室内设计装修装潢
下载原图
相关图片
珠宝店平面方案设计
迪拜虞先生珠宝店珠宝柜台平面布置图
珠宝店面空间设计商业展示其他设计图片赏析
第一次做珠宝会所,没有经验,求大神指导-拓者设计吧
深圳龙华cococity珠宝首饰展柜设计效果图
珠宝店平面方案设计
为你推荐
18对娱乐圈明星初恋对比王丽坤的眼光不错
情侣头像卡通呆萌一对 高清卡通呆萌情侣头像一对
珍珠圆子
艺术 #画画 #速写 #人物肖像 #动漫:线描:围巾少女 - 抖音
武汉地铁5号线,6号线二期,16号线
dc漫画宇宙超级英雄 正义联盟 闪电侠 超人 标志logo汽车防水贴纸
第五人格动态表情
像素画练习