图知网
搜索
首页
热门推荐
图片分类
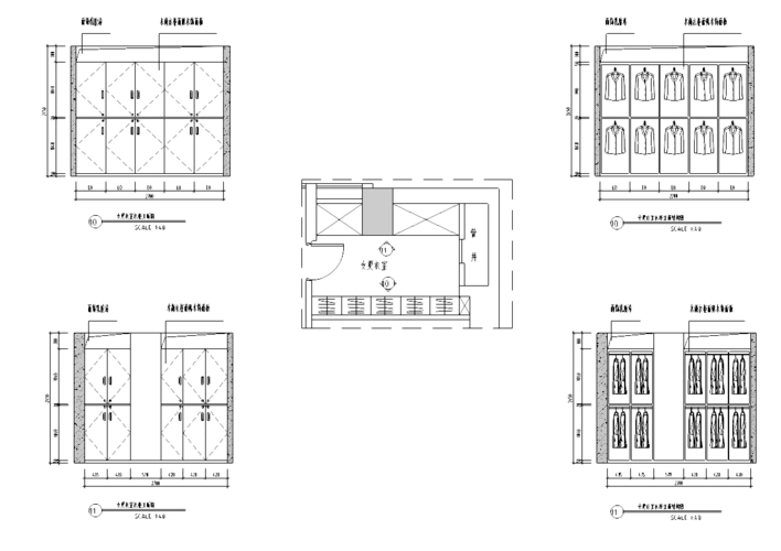
食品企业的更衣室可以这样做
下载原图
相关图片
科学的洁净区更衣室设计,为无菌药品安全生产护航
由于其空气中允许暴露量很小,为防止生产区含药品的气流通过更衣室
医疗卫生洗涤中心设备配置方案(配cad平面布置图)洗涤设备配置的前提
更衣室立面图
第二张图是我改造后的布局~更衣室 洗手间 浴室 卫生间
更衣室平面图图片
为你推荐
妈妈你真好看再上热搜明星妈妈集体秀穿搭高龄也有年轻范
王心凌当苦涩变回甜
今天看到一则中国女孩嫁黑人,被老公收拾得鼻青脸肿的照片,感觉既可怜
蘑菇头开心赌博又tm赢了gif动图_动态图_表情包下载_soogif
韩国andcabinet可爱呆萌创意卡通猫咪20米长透明装饰胶带贴纸
唐代公主凤冠
王者荣耀铠头像
不锈钢柄镰刀农用镰刀户外砍柴刀割草刀头草镰园林镰刀铁柄刮草刀