图知网
搜索
首页
热门推荐
图片分类
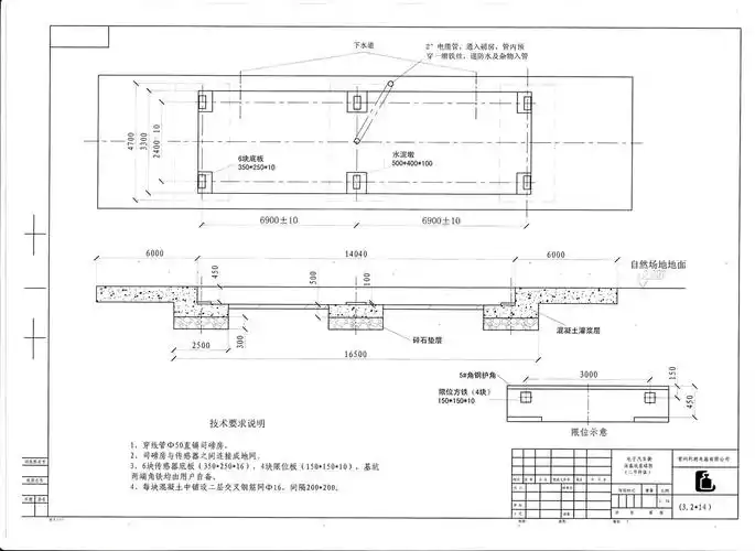
2.5*7米30吨电子地磅基础施工图纸
下载原图
相关图片
3米乘以18米100吨3节汽车衡基础图纸
地磅基础图纸全部地磅图纸苏州衡器厂家连云港地磅盐城地磅扬州地磅
3x16米150吨地磅图下载(198.80 kb,dwg格式) 机械cad图纸
150吨地磅3x16米四节浅基坑施工图
3.2*14大型地磅2节基坑图纸
150吨地磅基础cad图-地基基础-结构图纸-图纸-筑图网
为你推荐
肖战笑容肖战动图 - 专辑 - 高清图片,堆糖,美图壁纸兴趣社区
重返18岁丨从校服到婚纱的甜蜜爱情08
王耀庆的老婆图片,王耀庆和他老婆结婚竟然没有求婚,而且还这么草率?
常被颈椎病背锅的寰枕筋膜炎你了解么?
46322_1171002_69dae.jpg
4周岁男孩身高体重标准
浴桶成人塑料洗澡桶加厚家用泡澡桶大号洗澡盆沐浴桶大人浴盆浴缸
晚安世界迷人的夜景图片