图知网
搜索
首页
热门推荐
图片分类
断桥铝入户大门
下载原图
相关图片
高端定制铝型材入户门
百利玛门窗全屋定制门窗断桥铝钢化玻璃进户门室内平开门隔音玻璃
入户门 #入户门装甲门 #入户门改造 #断桥铝入户门 #断
日照断桥铝门窗
0015人付款天猫百利玛门窗全屋定制门窗断桥铝钢化玻璃入户门室内平
锌合金玻璃入户大门
为你推荐
娱乐大歌厅:绝对男人钟声演绎《月半小夜曲》,动人演唱听哭观众-影视
徐璐的身材太绝了穿人鱼裙都没勒出赘肉花瓶腰太惹眼
碧海潮女妖.#明珠夫人 #壁纸 #动漫 #天行九歌 - 抖音
彩色正方形毛毡板壁饰贴照片墙留言板公告栏幼儿园墙板尺寸可订做
菜叶简笔画菜叶简笔画彩色
某电梯门cad设计完整节点详图
宝可梦系列中的女角色viachorimokki
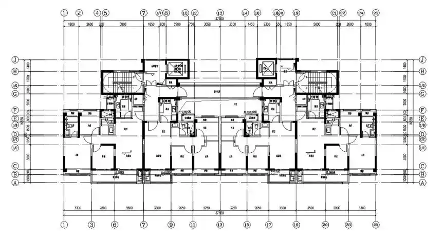
从6#楼标准层平面图可以看出,该楼栋为一梯两户两单元设计,主力户型为