图知网
搜索
首页
热门推荐
图片分类
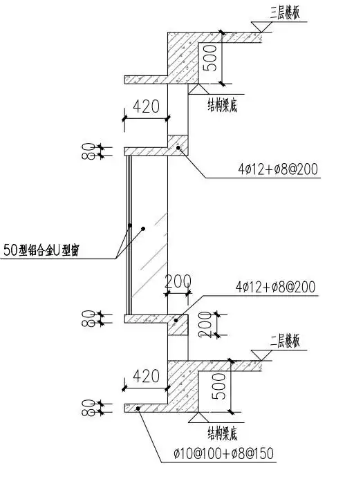
某飘窗台构造大样节点构造详图-混凝土节点详图-筑龙结构设计论坛
下载原图
相关图片
飘窗结构疑问,请大师帮忙下
[分享]飘窗大样图集资料免费下载
这个飘窗大样要怎么来画怎样定义它呢?
飘窗板钢筋布置
这个飘窗的钢筋怎么布置呢?
某飘窗节点大样详图
为你推荐
江疏影一字带高跟鞋[色][色] #江疏影
吊带唯美锁骨女头像,女生头像锁骨露肩吊带-图片大观-奇异网
八十年代的美女-价格:12元-se18725176-老照片-零售-7788收藏__收藏
杨紫个人介绍资料(杨紫个人资料档案)
futurama: worlds of tomorrow
一只比熊的变化
画个简笔画文化绘画红色的虾上色简笔画图片教程步骤虾画法儿童简笔画
木木夕女马