图知网
搜索
首页
热门推荐
图片分类
斜停车位标准尺寸图展示-地产文库
下载原图
相关图片
斜线型停车位
斜列式停车
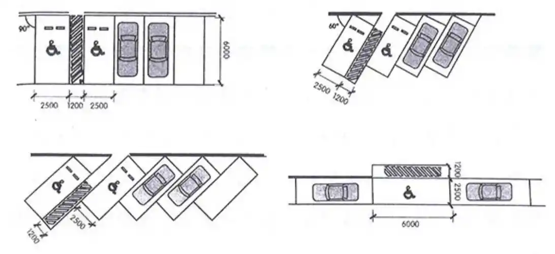
无障碍机动车停车位尺寸示意图在无障碍机动车停车位位置选择方面,不
侧方停车场地尺寸规范_侧方停车尺寸_侧方停车位划线尺寸
2,斜车位划法,停车位标准尺寸为2.8米*6米,倾斜角度60°.
斜列式停车位1
为你推荐
郭富城方媛牵手看马赛,感情好甜蜜喔!
构建新发展格局 海南自贸港如何作贡献——访海南省委书记沈晓明
点阵激光治疗术后疤痕
周庄,东方威尼斯,水乡如画.蓝天白云倒映在湖泊之中,古老的建 - 抖音
夏梦:女人最高级的活法,是懂得给心灵留白_岑范
白胡子壁纸800x600分辨率下载,白胡子壁纸,高清图片,壁纸,动漫-桌面城
初中必背古诗词如梦令常记溪亭日暮拼音版
请勿摘花警示牌简笔画女孩微笑地摘着花简笔画禁止摘花简笔画不许摘花