图知网
搜索
首页
热门推荐
图片分类
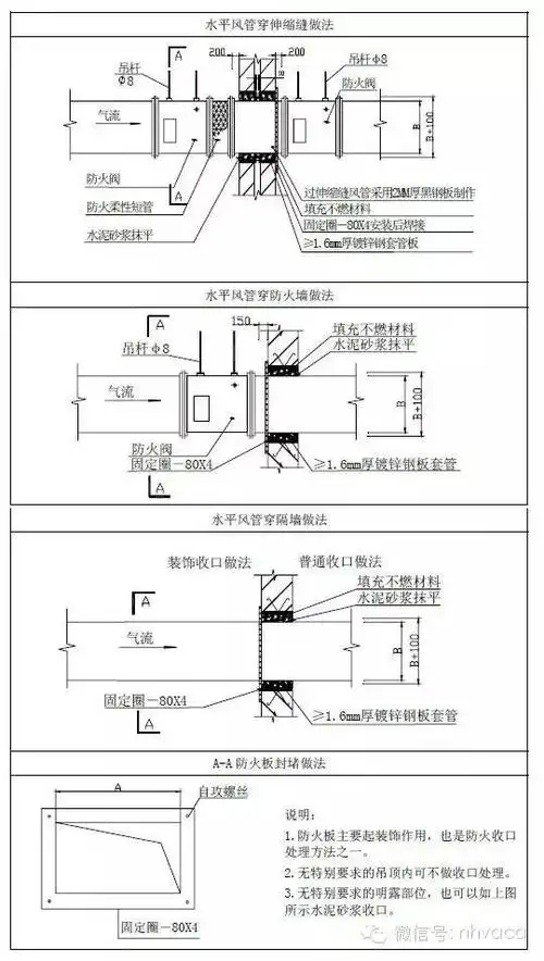
某化工厂内新建办公试验楼集中空调通风系统安装工程.如图6~1所示.
下载原图
相关图片
风管穿墙什么时候可以情况计算套管,套管怎么套定额?
暖通空调工程安装施工工艺标准
排烟通风管道平面图
通风管道 - 粗,中,高效三级过滤case description
共板通风管道设计图
经典暖通工程设计cad内衬风管安装示意图
为你推荐
龙或怪物的爪子照片
脚指甲油脚趾显白夏天女2021年新色免烤持久快干可剥酒红车厘子色
油桐树上结的桐子果
针对一些平时大家鲜少见到的鸡品种我做了几张图以及最适宜的家常
法师开示# 佛说有七种布施,不用一分钱,可得大福报.
卡西欧casio手表专场 卡西欧 时尚炫酷多功能电子男表
广州长隆水上乐园|长隆欢乐世界|嘉年华_网易订阅
商丘游玩,为大学生量身定制的旅游攻略