图知网
搜索
首页
热门推荐
图片分类
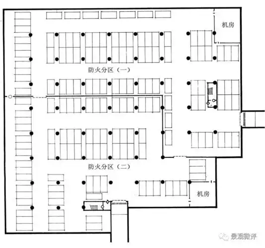
车库建筑设计规范jgj1002015
下载原图
相关图片
停车场地下车库设计规范
67图解地下车库设计规范
如何最大限度合理利用停车库的面积,标准尺寸附上
13j9273机械式停车库设计图册
图解地下车库设计规范
67图解地下车库设计规范
为你推荐
杨采钰合集|适合亚洲女孩的法式复古穿搭参考
后来遇见他-简单版-陪我春秋冬夏-抖音爆火唱哭10万网友双手简谱预览1
法式刘海
而韩庚作为sj组合中唯一的中国成员,是sj在中国人气的重要保证同时
左右分屏的微信聊天壁纸
岸边露伴
热销奔野四驱904拖拉机水田轮胎涡轮增压农用拖拉机
英雄联盟lol新英雄河流之王塔姆出装攻略