图知网
搜索
首页
热门推荐
图片分类
打喷嚏的人简笔画怎么画
下载原图
相关图片
感冒流鼻涕简笔画
网易订阅
吃熟食喝开水简笔画预防流感感冒简笔画儿童预防疾病简单简笔画预防
流感线条图片-流感线条素材-流感线条插画-摄图新视界
简笔画流鼻涕
感冒流鼻涕简笔画
为你推荐
可二胎儿子还不到三岁,两人就宣布离婚了.
简谱视唱 #乐谱 夜曲 - 抖音
网络热词乌拉是什么梗
镇雄将对大墓豪华墓活人墓进行全面整治
少儿古诗精选系列之明日歌-国语高清-母婴亲子视频-搜狐视频
摇滚 #kurtcobain #科特柯本 #nirvana #涅槃乐队 #垃圾摇滚
收藏 关键词:美容花朵标志图片下载,标志符号,标志图形,logo设计,创意
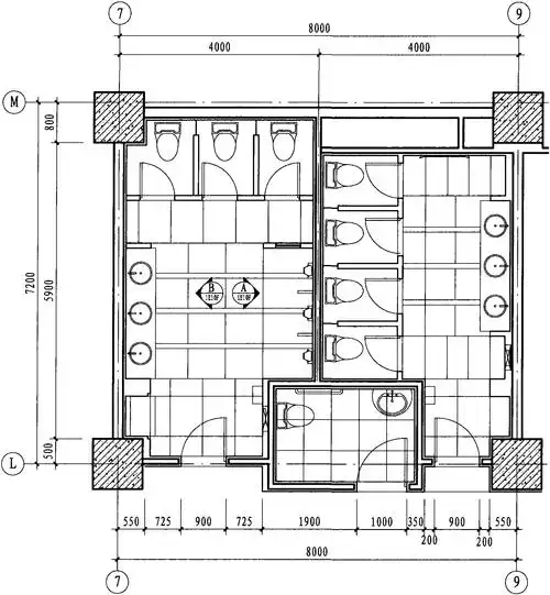
一层公共卫生间平面布置图 1:75