图知网
搜索
首页
热门推荐
图片分类
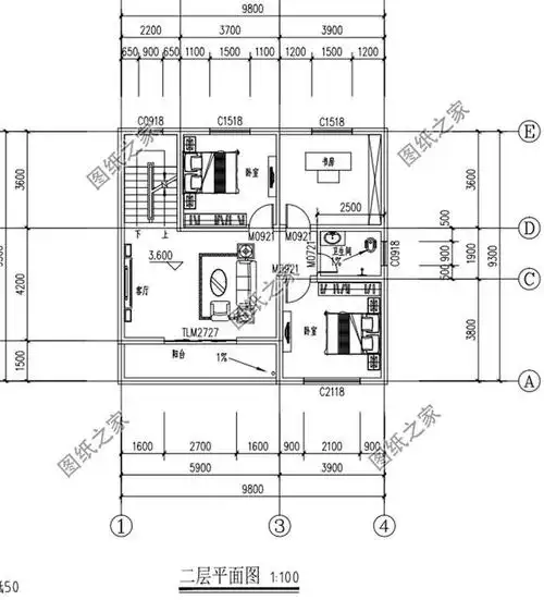
九十平米农村房屋图,家里地小的,现在不建还等何时
下载原图
相关图片
11*8的二层农村别墅全套图纸我有,需要可联系我.90平方房屋设计图片
农村三层占地90平方米自建房设计图简直就是小宅基地的福音
农村90平米二层楼房设计图小巧精致简单容易建
80-90平米自建楼房设计图,农村小别墅经典户型图
90平方米农村三层半房屋设计图纸和效果图,9米x12米
80-90平米自建楼房设计图,农村小别墅经典户型图
为你推荐
女生头像100张绝美
校园青春校服情侣装头像高清清纯的校服情侣头像一对两张图片
蠕虫会削弱和改善土壤照片
抖音热图,爱情伤感文字壁纸《女生》
凹凸世界全员照片
情侣头像可爱
宝马5系车身改色电光酒红南森改色膜浙江永康
纪念馆案例实景图丨淮海战役纪念馆"人民的胜利——淮海战役历史陈列