图知网
搜索
首页
热门推荐
图片分类
lofter for ipad —— 让兴趣,更有趣
下载原图
相关图片
微博
1080_4770竖版 竖屏
微博
沈九 #洛冰河 #冰哥 #渣反 是沈九和冰哥,另一个世界的 - 抖音
长图
人渣反派自救系统
为你推荐
路人镜头下的刘亦菲,玫红色抹胸连衣裙太惊艳了!
公主切假发片假刘海假发2021年时尚新款女自然前额全真发发丝留海
和刘耀文邂逅夏天
经典炮灰,长谷川雷电-topacg
王羲之《唐怀仁集圣教序》行书临帖
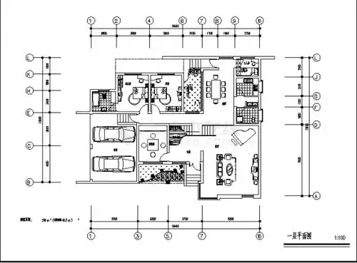
某欧式小别墅住宅楼建筑设计施工cad图纸
吕布奉先berserker天下无双08赤兔马对军宝具伪军神五兵
2020情人节皮肤 金克丝 皮肤特效及炫彩预览