图知网
搜索
首页
热门推荐
图片分类
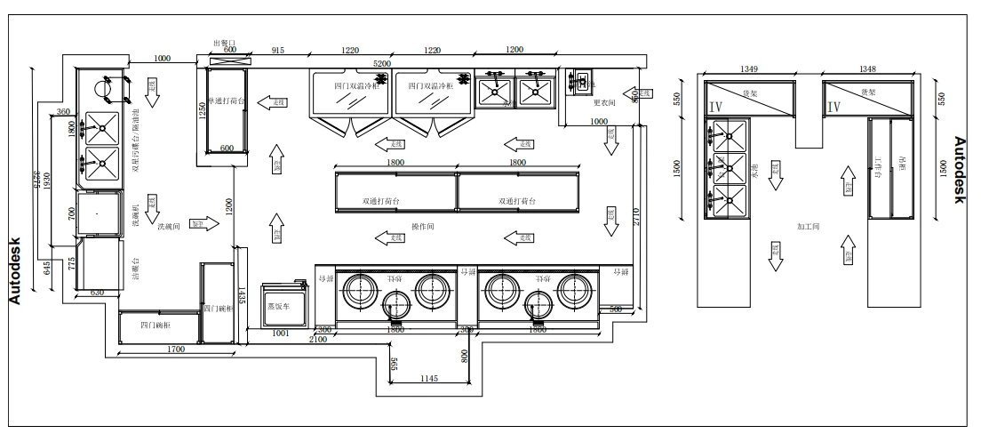
商用厨房设计方案
下载原图
相关图片
餐饮店,餐饮店厨房设备,街边餐饮店厨房设备
商用厨房设备cad平面布置图纸酒店食堂餐厅后厨厨房cad素材设计图
如何合理布局后厨动线设计从而提升餐厅营业额
厨房功能分区基本布局示意图
厨房餐厅平面图
酒店酒楼厨房工程平面设计图
为你推荐
飞羽瞬间
直发发型女中长发 2021最洋气直发发型推荐
明星在武汉:杨威出门戴泳镜和浴帽,唐一菲亲人受感染
狼尾鲻鱼头酷感满满 挑染搭配飒气无比_最新发型 - 美发站
12星座少女插画
最全75915加拿大入境申报中英文翻译上
窗帘轨道滑轮顶装弯曲阳台滑道免打孔盒飘窗滑轨u型导轨架可弯杆
5千瓦10匹活塞空压机.捷豹7.5千瓦10匹活塞空压 - 抖音