图知网
搜索
首页
热门推荐
图片分类
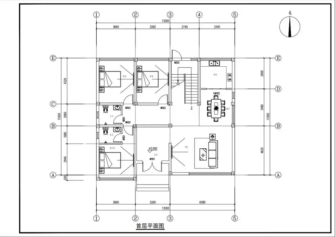
11x13米带露台飘窗三层农村别墅,造型高大上,符合现代农村
下载原图
相关图片
户型平面图(13×11)面宽13米,进深11米.三套户型平面 - 抖音
面宽14米,进深13米的地方,怎样建成三层别墅?有哪些设计方案?
经典再现,贵州11x13米三层乡村别墅
2套农村别墅11x13米,户型方正实用,你更钟意哪套?
宅基地太小怎么设计?6×13米小开间户型,这样建大气又时尚
三层实用新款农村自建房设计图11x12米 - 轩鼎房屋图纸
为你推荐
人累了和心累了的伤感图片
妻子露出大孕肚,我们看到她的第三胎肚子已经很大了,不过四肢和脸看
00年轻的林志颖真帅气!
动漫 推特 背景 壁纸 头像 男头 作者推特id:mrmr_m27
套装工具调教手铐用具惩罚夫妻情趣性道具 (黑色)sm毛绒7件套 送4礼
瑞克与莫蒂-疯狂逃亡日常
大概就是和"无头尸"意思差不多. 最常见的就是照片主角拿着自己的头.
满背龙遮盖_纹身图案手稿图片_余元光的纹身作品集