图知网
搜索
首页
热门推荐
图片分类
敢达巴巴托斯
下载原图
相关图片
【组装】1/100 mg 巴巴托斯
巴巴托斯
板绘模型不够板绘来凑巴巴托斯天狼座战前整备photoshop厚涂
高达史诗登场巴巴托斯
自制万代tv巴巴托斯天狼座第一次玩喷涂,做的不好轻
入坑胶万代 铁血 巴巴托斯高达_哔哩哔哩_bilibili
为你推荐
邱泽
中国板块三维地图,中国山脉地图,中国地形图全貌3d模型,max,fbx,obj
一,拉弓射箭|少林晈拳|武术世家
杨梅红国际私立美校(梅川校区)-图片-上海-大众点评网
茴香籽
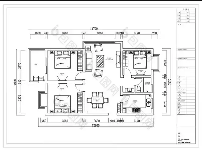
三室两厅cad户型图平面
一部红楼梦的传奇之旅 侯长荣,这个名字或许对于年轻观众来说有些陌生
微信头像胡文煊