图知网
搜索
首页
热门推荐
图片分类
生物质风暖壁炉的制作方法
下载原图
相关图片
cn209763042u_一种真火壁炉有效
大理石壁炉-(现货)
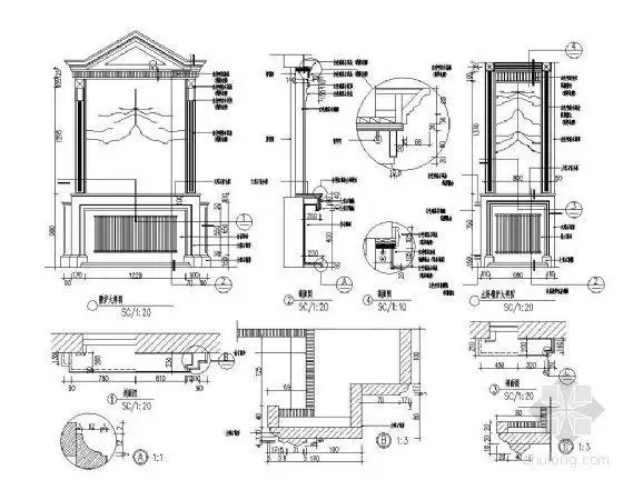
欧式壁炉设计cad深化图库施工图下载【id:233284108】
[分享]欧式壁炉cad立面资料免费下载
一种生物质燃料真火壁炉的制作方法
国森牌燃气壁挂炉家用节能二级能效采暖炉家用取暖炉两用型
为你推荐
胸腔里跳动的心脏
唯美小清新静物桌面壁纸
专业明星签名设计商务纯手写英文艺术名字手工个性一笔签包修改【图片
高清冷血邪魅男生图片头像合集
2021年2月梦幻迷人天空美景日历,月历壁纸-回车桌面
棵棵桂花树幽香报中秋
宋亚轩扮演碧眼狐狸有谁发现他下意识的动作不经意就陷了进去
新款宝马m3官图发布,重新设计了前大灯,提供全新锻造m合金825m轮圈