图知网
搜索
首页
热门推荐
图片分类
jy-690b(四扇推拉门)
下载原图
相关图片
sky-grm150系列四扇提升推拉门
jh80m非断桥推拉门
鑫艺轩欧美简约卧室推拉门 铝合金门窗 极窄门客厅室内窄边平移门
推拉门属性参数
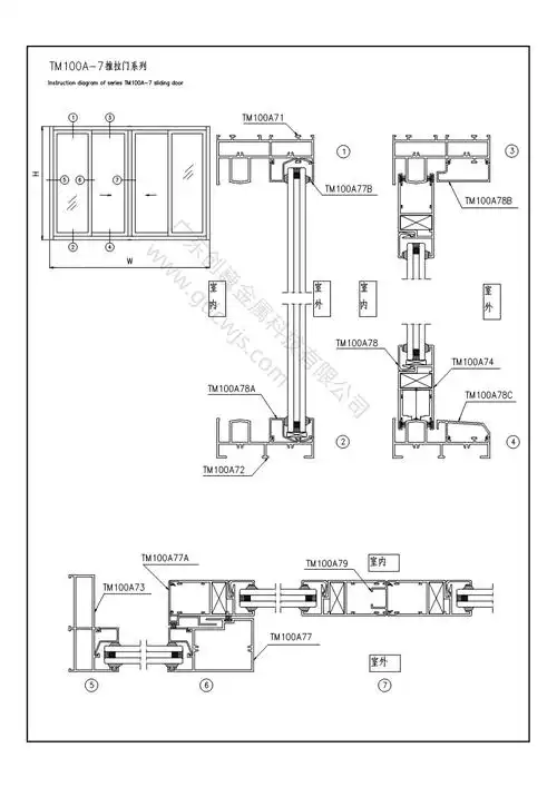
坚美【19】tm100a单轨推拉门-铝型材厂家 铝材加工 工业铝型材 门窗
16极窄边框07三四五六联动极简吊轨单轨铝合金超白玻璃移门推拉门
为你推荐
这本修仙小说让修仙体系更加完善,还开创了宏大功法和法器层次!
iphone锁屏壁纸38张个性文字壁纸
这几部青春校园偶像剧你都看过吗?是不是也觉得最后一部最甜?
终极笔记演员表!
画法简笔画手的画法简笔画儿童手的画法简笔画8篇侧边手掌简笔画手掌
就是爱你吉他谱
图片转文字手写字体也能准确识别ios端
港星胡杏儿片场穿鲨鱼裤出镜好尴尬已婚已育年龄大了不注意形象