图知网
搜索
首页
热门推荐
图片分类
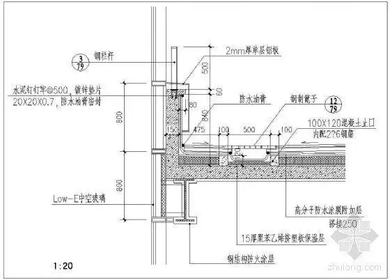
[分享]檐沟做法cad图资料下载
下载原图
相关图片
平屋顶女儿墙外排水三角形天沟的构造是怎样的呀
女儿墙外排水构造
平屋顶檐沟外排水矩形天沟.png
外排水的屋顶形式有:沿屋顶四周设檐沟,沿纵墙设檐沟,女儿墙外设檐沟
屋面檐沟做法详图
分享檐口排水沟资料下载
为你推荐
盛夏的海边从醍醐灌顶囍上眉梢转采于2020-03-08 17:28:31醉玲珑古装
航天员的牛年公仔挂进核心舱-第1张图片-创女网
"庆祝中华人民共和国成立70周年"综合文艺演出地点:蓬溪县红海舒家
636首每一天 - 基督教歌谱赞美诗歌谱
阳光下的大豆叶子是绿色的.
江西好礼红色旅游文创产品获奖名单公布啦
英国人_全景网
好听音乐t头像