图知网
搜索
首页
热门推荐
图片分类
于红梅是哪年出生的多大了她年轻时候的照片组图
下载原图
相关图片
二胡大师宋飞于红梅孙凰陈军四人哪位技术更强如按以上顺序排名次你
著名胡琴表演艺术家,教育家:宋飞著名笛,箫,埙演奏家:张维良打击乐
献礼建党百年红梅花开于红梅二胡音乐会6月6日将在枣庄滕州剧院上演
献礼建党百年红梅花开于红梅二胡音乐会6月6日将在枣庄滕州剧院上演
关于闪婚
弓弦上的中国力量中央音乐学院副院长于红梅在黔西南州讲授音乐党课
为你推荐
歼-11战斗机最新猛照曝光列队滑行起飞训练
a002575《罂粟花田》法国画家克劳德·莫奈高清作品
鸡皮疙瘩系列原版
十,杨幂
纯手绘26个字母创意(第一辑)字母变怪兽 字母变表情包 字母变动物英文
夏日自带仙气的脚美甲合集爱美的女生连脚脚也不能放过哦
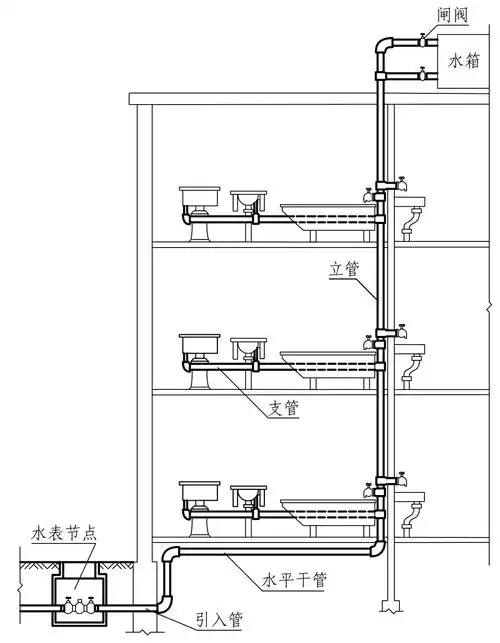
1.室内给水系统的组成16.2.1 室内给水排水工程的
马来西亚吉隆坡粉红清真寺