图知网
搜索
首页
热门推荐
图片分类
汪峰高调官宣后,那英却被推上热搜,竟意外扯出陈年旧事
下载原图
相关图片
那英个人资料简介及("歌坛天后"那英出道34年,到底结了多少恩怨?
3,那英个人资料简介4,歌手那英个人资料5,那英和莫文蔚谁年龄大6,那英
《歌手2024》名单炸裂!那英准歌王,多位欧美大咖加盟备受瞩目
那英个人资料简介及(简历(分手后带儿子嫁给男闺蜜))_金纳莱网
那英三任丈夫简介(东北大妞那英的彪悍情史)
汪峰高调官宣后,那英被推上热搜,意外扯出陈年旧事,网友:刺激
为你推荐
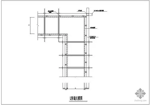
[分享]木工支模的关键节点资料免费下载
q版动漫女生人物马克笔手绘附线稿
江山 家印青作品选 50 歌谱 简谱
闺女做的北京"小吃"糖葫芦#橡皮泥手工糖葫芦#逼真不逼真#北 - 抖音
木油户外木地板防水涂料耐候改色翻新抗氧化油漆透明木蜡油多色可选
我的太阳花老桩
两边铲的最帅气发型,剪个硬汉气质发型
办公室隔断墙公司餐厅玄关屏风logo背景墙前台进门格栅镂空形象墙