图知网
搜索
首页
热门推荐
图片分类
室外爬梯_word文档在线阅读与下载_无忧文档
下载原图
相关图片
j j -希克森图片
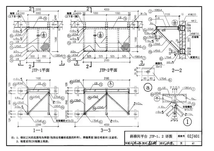
02j401钢梯图集_绿色文库网
「精品工程」亮点做法图片集之可折叠式屋面爬梯_网易订阅
直爬梯护笼钢梯图集15j401 02j401 热镀锌板式钢螺旋梯 普通钢梯
02j401某t5a09,t5a12立面,剖面节点构造详图-混凝土节点详图-筑龙结构
屋面钢爬梯图集第67页_百度知道
为你推荐
终结的炽天使 百夜米迦尔 绘师:ini 本作品pixiv id=62531632
全员合照-第五人格图片秀-话本小说网
看看我做的感应测电笔
"开元森泊旅游投资公司总经理叶建平表示,杭州湘湖森泊乐园开业第一年
加菲猫活体纯种宠物家养小奶猫异国短毛幼体可爱猫咪
6,缅因猫|黑色猫 纯黑色缅因猫在阳光照耀下黑色的被毛会泛着棕色或
胆机老陈300b单端纯甲类hifi电子管功放发烧厂家胆机
端午节插画赛龙舟