图知网
搜索
首页
热门推荐
图片分类
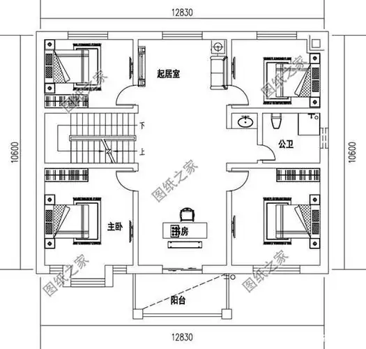
乡村二层别墅设计图纸带高清效果图
下载原图
相关图片
农村两层房屋设计图纸推荐,回见建别墅的好选择-建房圈
二层16乘10米独栋民宅设计,门口连廊很安逸
跪求!农村二层楼的土建施工图 设计效果图17*12米
农村二层中式风格自建房设计图二层布局图
新农村二层有飘窗的别墅户型设计,这样的图纸一般人我都不给他看
农村小二层自建别墅设计图纸,洋气十足,20万足够
为你推荐
澳门这一夜,内娱女明星们的"真实颜值",治好了我的容貌焦虑!
王一博天冷了就穿鸭鸭##yaya鸭鸭品牌首席代言人王一博
馄饨店商铺店面装修实例-昆山尚逸居装饰装修效果图
毛呢┃雪花┃圣诞美甲教程.10月17日晚上20点直播美甲教学 - 抖音
故乡草原_简谱_搜谱网
赵小刀hwd2
少年街霸3特殊开场动画赏析元轻松挡住了豪鬼的瞬狱杀
手绘感觉超浓厚的萌版卡通式场景,总有种温暖怀念的味道在里面呢.