图知网
搜索
首页
热门推荐
图片分类
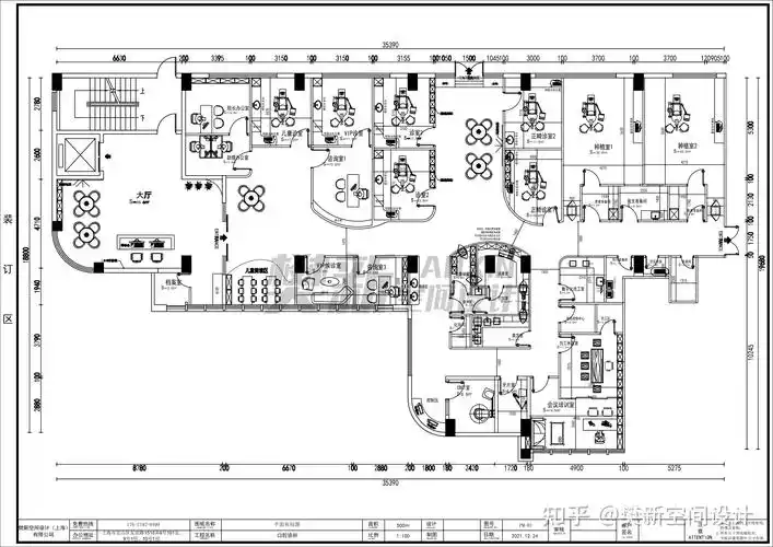
诊所设计平面图:创建一个高效,舒适的医疗环境
下载原图
相关图片
诊所设计平面图:创建一个高效,舒适的医疗环境
一个温暖的诊所 / rigi睿集设计,平面图
平面布局部分施工图的展示,施工图图纸完善到每一面墙.
诊所平面图2
牙科诊所设计平面图:打造舒适,高效的诊疗环境
标准诊室平面图——动线示意(二) 房间家具/设备配置清单(表1) 表
为你推荐
img_6051黄鹡鸰.jpg
全口烂牙不想活怎么办有没有人38岁全口种植牙做完的
智能设计logo设计 - logo神器
臻宠艺品萌宠柯基马克杯骨瓷带把手创意狗狗咖啡杯子可爱少女包邮
钩针编织ins镂空吊带背心视频教程四
红色大气反奸防谍提升保密意识文化墙墙
无语子表情包
手工衍纸装饰画——火烈鸟