图知网
搜索
首页
热门推荐
图片分类
所有分类 初中教育 政史地 初二政史地 第二节《学习与探究—亚洲的
下载原图
相关图片
亚洲地区
区域地理亚洲
亚洲版图是什么梗
亚洲政区图
无忧文档 所有分类 高中教育 政史地 高二政史地 亚洲概况,东亚和日本
ntu train asia seminar presentation
为你推荐
女人上了年纪之后,尽量别留"这5款发型",大妈感十足还没气质
炝汁菜心,清淡味美,简单易上手的快手菜
广州人注意中国游客入境被罚500万只因带了这东西
半壶纱6孔陶笛曲谱乐谱
fate阿尔托莉雅超清美图!(无水印典藏版) 第17张
还记得hold住姐吗
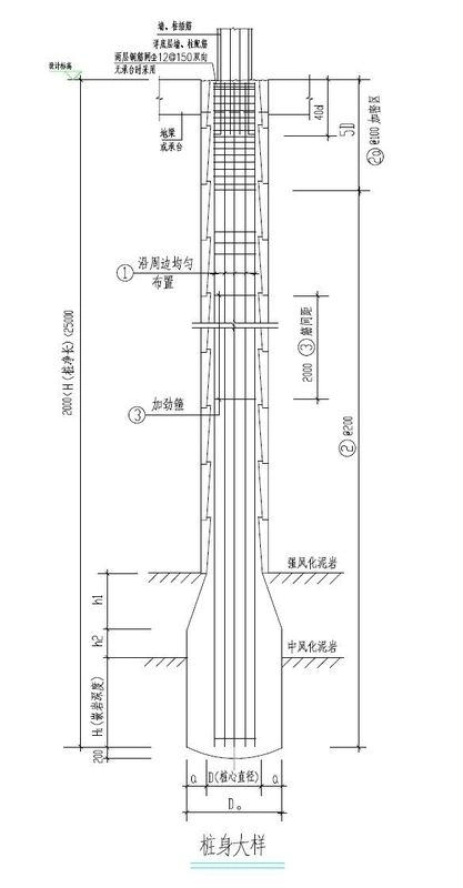
螺旋箍筋长度计算公式 人工挖孔桩钢筋计算 钢筋计算公式 钢筋笼计算
杭州断桥