图知网
搜索
首页
热门推荐
图片分类
一种由钢方管构成的剪力墙板装配而成的房屋的制作方法
下载原图
相关图片
10套铝方管施工建筑大样图
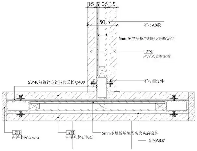
深化节点方案后↑用20*40方管做钢架加固,平封5mm基层板,固定木方上
某铝塑板外挂铝方管详图cad设计
镀锌方管,铝塑板幕墙节点详图
室内给水,排水管道节点图做法大全(节点图解)-给排水节点详图-筑龙
分享铝方通墙面cad节点图资料下载
为你推荐
原创鹿晗真是染发达人就没有他驾驭不了的神仙发色粉色都毫不尴尬
深圳龙岗中正高尔夫球场.
国际电工香槟色开关插座暗装一开五孔家用86型金属拉丝面板墙上
告白气球完美演奏版钢琴谱双手数字简谱
古装剧《长歌行》古装男神&女神10:娃尔饰演阿史那杜尔
关于单簧管的小指运指
惠安石雕户外石头香炉寺庙香炉祭祀墓地香炉北京狮小石狮镇墓兽
欢欢幼儿园开学温馨提示