图知网
搜索
首页
热门推荐
图片分类
素材古代绘色谱
下载原图
相关图片
色谱
常用颜色色谱图片
实用素材# 【第32期】两套实用色谱大全《日传统色彩色谱集》和
实用四色配色大全(美术设计师必备色谱)(精)
设计必备的配色方案
紫灰色
为你推荐
古代特色之基本礼仪 - 古夜醉云 - 一剑情缘何时了
你必须要骑车的40个理由,不服来辩!
李诗婷 武汉大学 身高163 体重78斤
白小白只是我还爱你首发自爆已经写不出太美的爱情
小溪流水矢量220流水七彩61卡通场景图片素材350全球洗手日手绘卡通
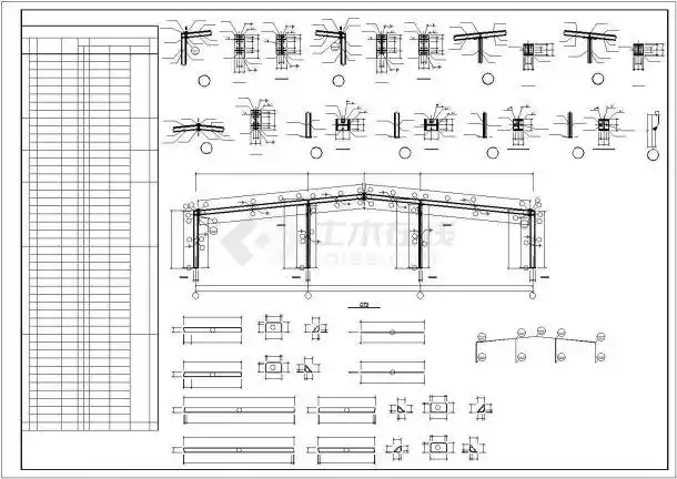
30米跨的钢结构厂房结构设计图
『大名山』中国最著名十大宗教名山,峨眉山竟只排第三
华为mate30pro又降价,旗舰机只有"平民化"才能冲销量?