图知网
搜索
首页
热门推荐
图片分类
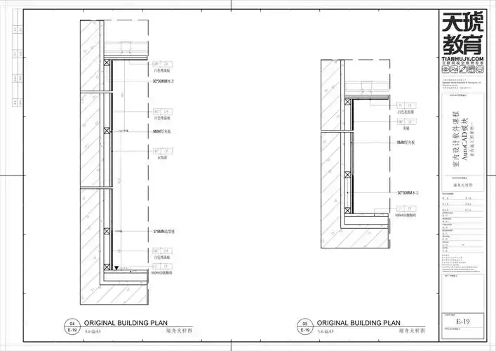
第十四课 绘制墙身大样图
下载原图
相关图片
[图块/节点]节能型外墙外保温墙体节点详图
大样施工图-墙面大样图
超全45张墙面剖面图节点大样图结构狮必备
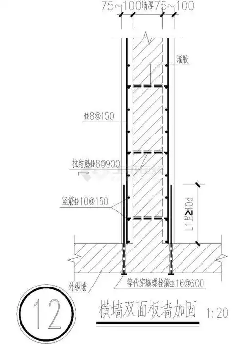
混凝土板墙做法大样之横墙双面板墙加固详图
大样施工图-墙面大样图
铝板造型墙体大样图
为你推荐
嘿嘿嘿
喝水,咽口水都疼是怎么回事,白色哪里像泡一样的是
简笔画口袋妖怪之暴鲤龙神奇宝贝暴鲤龙简笔画暴鲤龙简笔画步骤简笔画
iphone超可爱卡通动漫布朗熊全面屏高清手机壁纸
上海太古汇星巴克甄选
旅美女画家吕佳女性人体油画作品精选
凭咱俩的关系,请我吃根棒棒糖不过分吧?#西瓜 #哈密瓜 #吃 - 抖音
定福庄校区 快乐阅读,自制绘本故事