图知网
搜索
首页
热门推荐
图片分类
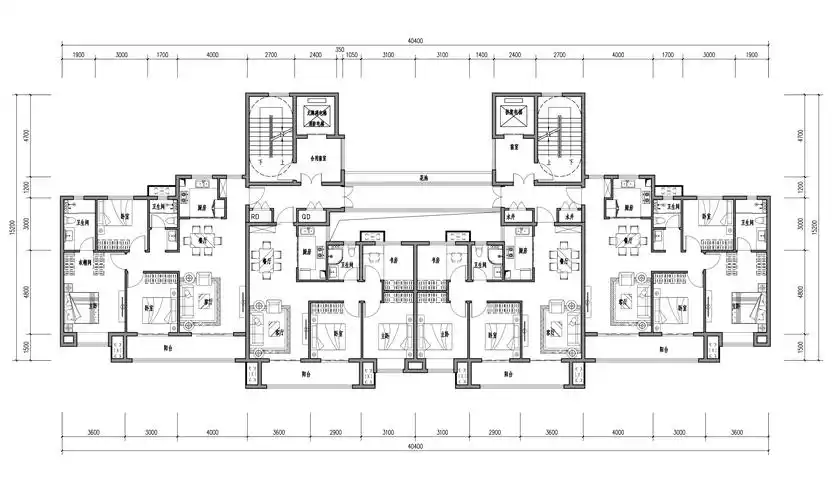
高层住宅新标cad户型图连廊单元楼平立剖cad建筑布局设计施工图纸
下载原图
相关图片
实例,北连廊户型为何能打败传统户型?真能四户全通透吗?
带连廊的户型好不好
带连廊的房能买吗预算只够买个连廊房有专业人士帮忙看下平面图吗完全
以下是他们高层楼层平面设计图: 此前我们分析过连廊式住宅的主要特性
高层为什么要设计连廊?两梯四户有,无连廊的区别是什么?
连廊户型出现后,两梯四户的布局是这样的.
为你推荐
性感可爱的二次元动漫少女图片桌面壁纸
无水印头像女高冷,女生头像无水印高冷-图片大观-奇异网
浙江舟山看守所搬迁武警荷枪实弹押解组图
双侧腿皮肤病二十余年
走遍西湖边200座亭子毕业于浙大计算机系的理工男手绘的亭子你见过几
射箭仔
热血江湖武器怎么去掉魂 - 抖音
p>珠穆朗玛峰(英语:mount qomolangma,藏语: