图知网
搜索
首页
热门推荐
图片分类
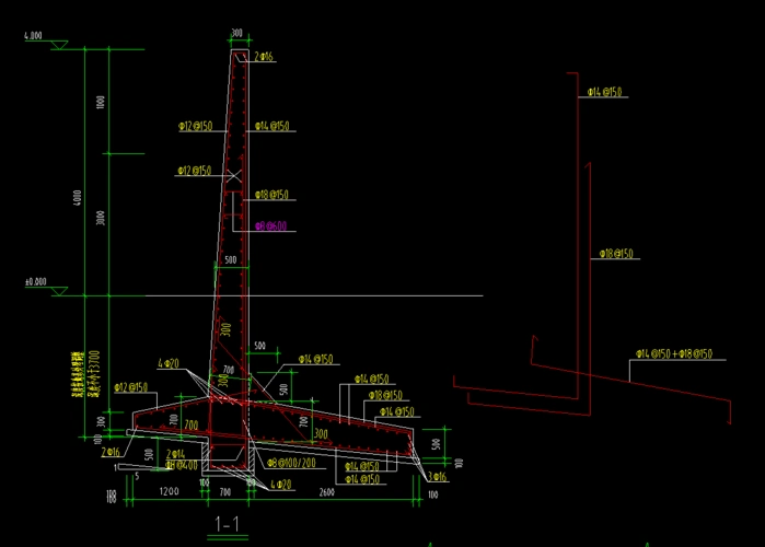
重力式挡土墙图
下载原图
相关图片
钢筋混凝土挡土墙水利施工图 - 大坝堤防其他工程图纸下载 - 沐风图纸
这个挡土墙怎么画用什么画混凝土钢筋怎么布置才能工程量是对的大佬
[资料]挡土墙节点构造详图
某扶臂式挡土墙详细cad图纸(dwg格式)
挡土墙结构配筋图
挡土墙节点构造详图-混凝土节点详图-筑龙结构设计论坛
为你推荐
情侣头像红色系婚服动漫
怎么简单画爸爸妈妈一家四口简笔画步骤图解
男生头像高冷霸气背影第1页
纽约曼哈顿大都会博物馆_高清图片_全景视觉
在帮妈妈扫地
活佛济公:追云一路上都被绑着走,还要受白雪萧风的嘲笑
小学六年级求阴影部分面积试题和答案3
玫瑰金美缝应该如何搭配瓷砖