图知网
搜索
首页
热门推荐
图片分类
淘气堡儿童乐园游乐场设备滑梯蹦床投影沙池
下载原图
相关图片
【儿童游乐场设计】探秘美丽的星球世界 | 安啦•星球乐园_游戏
儿童乐园方案|插画|商业插画|段破浪_原创作品-站酷zcool
儿童乐园装修平面图-【城起设计公司】装修效果图
市医院儿童游乐区|空间|展陈设计|xir1_小木匠 - 原创作品 - 站酷 (zc
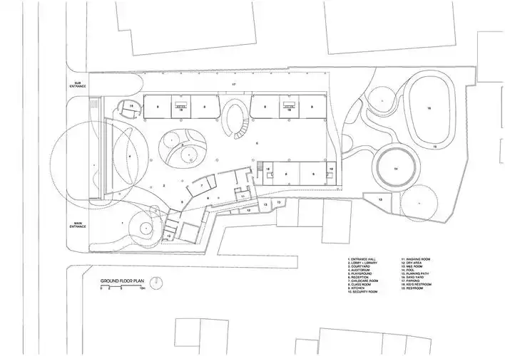
儿童活动中心 – loft cn
案例赏析:澳大利亚·悉尼儿童活动空间nubo_手机搜狐网
为你推荐
鞠婧祎照片
惠州景欣装饰140平方新中式风格餐厅效果图
薇姿(vichy)净颜无瑕祛痘保湿洁面啫喱 200ml 清洁 补水 收敛 洗面奶
肌肉男轮廓矢量插画
jk制服
汉诺鑫威办公家具hnxwscsjqasmbgz1400报价_参数_图片_视频_怎么样
谱恩羊奶粉品牌海报设计
十大国粹#京剧#京剧头像,壁纸来啦,#歌曲陨落 - 抖音