图知网
搜索
首页
热门推荐
图片分类
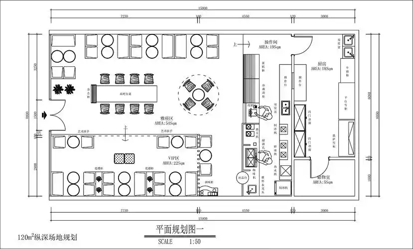
吧台设计丨咖啡和茶饮丨布局进来抄作业90.
下载原图
相关图片
咖啡馆高低吧台设计,老房改造咖啡馆#咖啡馆设计#咖啡馆吧台设 - 抖音
zero coffee 咖啡厅设计
咖啡厅设计
咖啡店吧台应具备以 - 抖音
咖啡厅的平面图
请布置成咖啡厅,需预留操作间15㎡, 带操作的吧台
为你推荐
姜汉娜写真集
声母笔顺
史上最丑的公主:泰国朱拉蓬公主
【女医明妃传】刘诗诗,霍建华,黄轩三人人物预告——医者仁心,我心中
爱心给你我的心爱你gif动图_动态图_表情包下载_soogif
关键词:川味第一家菜谱 菜谱 菜单 展板 模板 菜 背景 菜肴 矢量菜单
楷书忍字
唯美古风系 兄弟