图知网
搜索
首页
热门推荐
图片分类
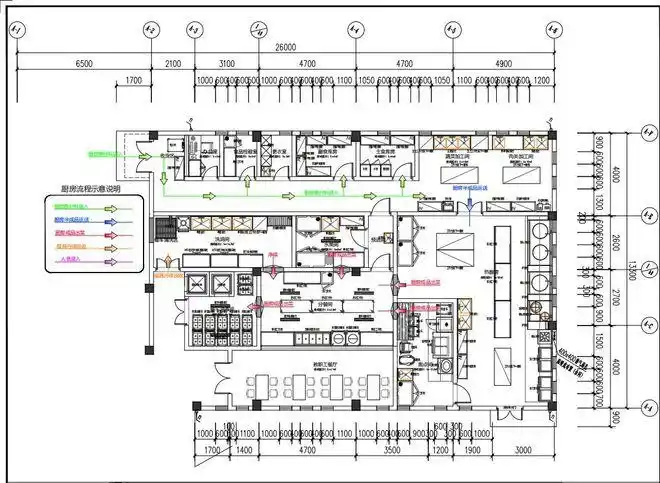
原创餐饮厨房排油烟设备和油烟净化器该怎么搭配?
下载原图
相关图片
餐厅厨房平面图doc1页
厨房设计平面图_第1页
厨房布局平面图
食堂设计丨医院食堂厨房的设计细节和工程注意事项
饭店厨房由于是应用于大众的餐饮需求,因此在设计方面应以便捷,实用
首页 新闻资讯 厨房百科 餐饮设计知识 餐饮后厨有必要设计吗?
为你推荐
歌手林忆莲身材发福皱纹还那么多在她身上看到了大妈感
通过欣赏,画脸谱,画戏剧人物的教学活动,使学生对各种戏曲有所了解
回顾刘德华:我一生帮助过很多人,但是有一个人,看见他就想揍
三角带带轮轮槽尺寸
帮妈妈洗碗看图写话
英雄联盟lol无极剑圣易大师猩腥红之月皮肤原画,高清图片,手机壁纸
逃学外传taoxuewaizhuan(1988)
透过出土文物,观察中国历代传统艺术凤纹的演变_图腾_器物_青铜器