图知网
搜索
首页
热门推荐
图片分类
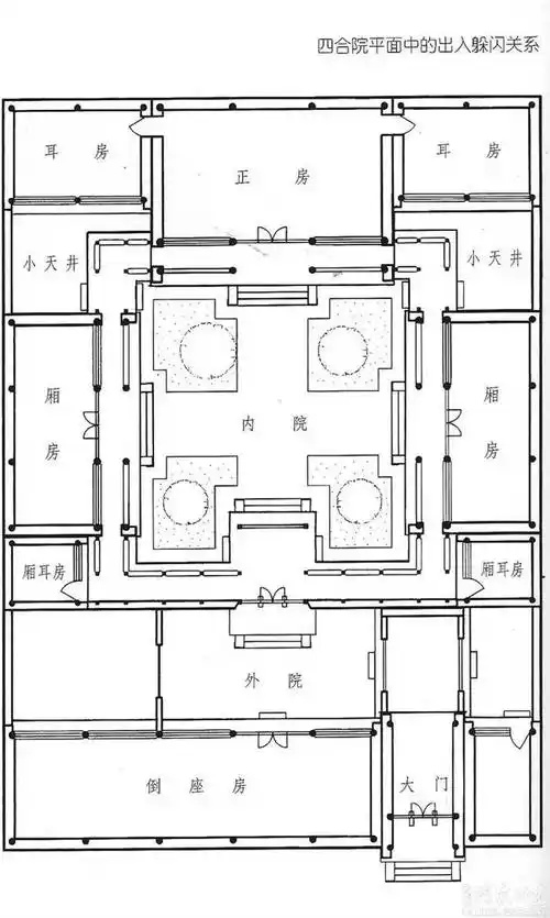
北京四合院的外观方正,大多呈长方形平面,其中所有的建筑都采用正朝向
下载原图
相关图片
四合院平面设计图大全
四合院平面图
盖一套新中式四合院别墅,气质不一般,真正的中国式豪宅!
占地29x60一层自建四合院设计全套施工图
一层徽派四合院平面图
古建中国-中国风水学之四合院风水布局!
为你推荐
赵丽颖同款手链粉丝应援礼物颖宝赵小刀定制同款送闺蜜礼物生日
留长发过程
卡卡西头像走一波
大气又低调头像图片大全低调又成稳的大气唯美头像
qq女生用的霸气头像戴帽子的
女生高冷超拽背影头像背影如照片这种暂时这么多好
马尔代夫首都马累岛城市风光航拍视角
太平洋战争中日本为何能和美国硬杠