图知网
搜索
首页
热门推荐
图片分类
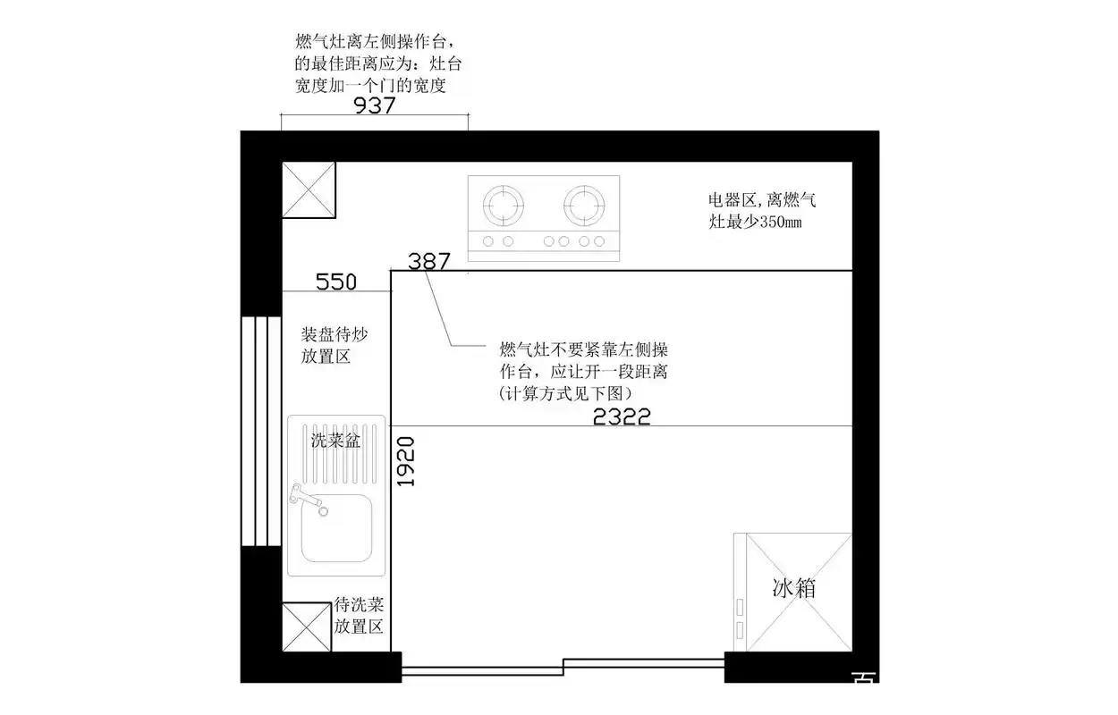
房子装修小户型厨房可以这样装附橱柜设计图
下载原图
相关图片
装修厨房设计指南
设计干货小户型空间厨房的四种布局方案
厨房注意事项,合理的空间布局才是最舒服的!
厨房平面布置图
中国人的厨房就得这么装不谈虚的4种尺寸布局7大技巧
厨房尺寸布局,有图有真相!
为你推荐
高清头像微信2021年最新版男 男生头像图片大全 -【爱个性】
高清微信背影头像女生唯美好看 你只需要迈一步剩下路我来走
金泰亨蓝发##金泰亨kpop永一
cover
回家萨克斯谱
盘丝洞蜘蛛精
正常人手掌与肝掌图片
常用的冷敷方法有哪些?