图知网
搜索
首页
热门推荐
图片分类
绿篱色块苗金叶水腊辽东水蜡树货源充足
下载原图
相关图片
香气袭人的辽东水蜡树
水蜡树
辽东水蜡树
辽东水蜡树
水蜡树
【原创摄影】辽东水蜡树,好奇怪的名字
为你推荐
王一博:跨界的典范——从娱乐明星到学术讲台的启示|乐器|天天向上
藏青色宴会晚礼服女气质洋装平时可穿高端妈妈参加婚礼鱼尾连衣裙
男生头像春早秋晚岁岁平安
我们班的艺术造型集体照,美不美?
小子是耍帅还是耍酷
如果说打响了枪兵幸运e名号的是库·丘林,那么让这个传说得以延续的
迪士尼在下一盘大棋?从《旺达幻视》读懂漫威的未来
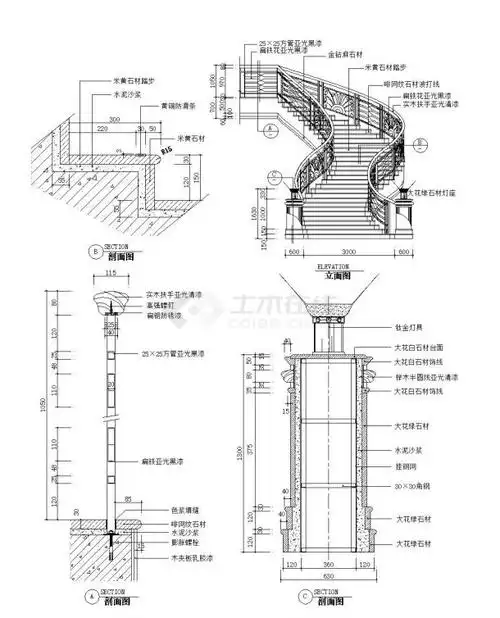
弧形楼梯节点详图