图知网
搜索
首页
热门推荐
图片分类
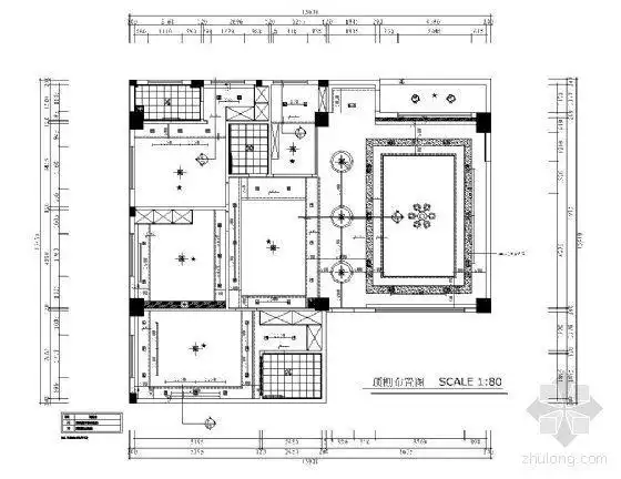
吊顶布局图,方型吊顶更凸显空间简洁大气,吊顶暗藏灯带,通透明亮.
下载原图
相关图片
[分享]家装吊顶详图cad资料下载
施工图项目位置:江苏设计风格:现代风格图纸格式:cad2000图纸张数:20
[分享]铝扣吊顶装修效果图资料下载
扮家家云渲染精选资料天花吊顶图合集输啥都不能输
[分享]餐厅吊顶详图资料下载
59个cad吊顶节点大样图块
为你推荐
伤感文字背景图/朋友圈超火文案分享 不管我怎么努力都回不到当初的
马嘉祺动图
2022手绘酷酷的女生头像_霸气又拽的手绘女头合集_头像_女生_酷酷
幸福的句子甜蜜情侣的
冬季可以清热解毒的食物
林彦俊偶像练习生出道夜壁纸991
早安心语正能量语句早上好图片带字励志
迷雾资料页_娱乐资料库_新浪娱乐_新浪网