图知网
搜索
首页
热门推荐
图片分类
[分享]基础大放脚dwg资料下载
下载原图
相关图片
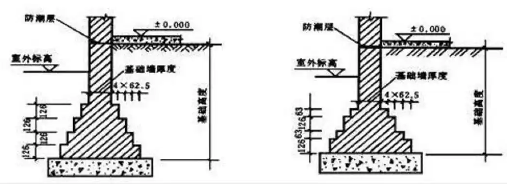
砖基础放大脚
2m,放坡系数为0.33,),基础总长度为: 100m,土方挖方
大放脚折算面积(s (4-28)等高式和不等高式砖基础大放脚的
0m,三层等高大放脚.试计算砖基础工 程量.
标准砖大放脚折加高度和增加断面面积
砖基础大放脚砖基础大放脚尺寸
为你推荐
2020精选流行短发29款,一看就很心动,时尚瘦脸还洋气
陈百强
归档
道教神仙体系体系
重音口琴演奏西海情歌,刀郎经典歌曲 有故事的正哥02020202
塑料溜槽u型塑料溜槽塑料溜槽价格佳硕
马克笔眼睛练习0928
呲你gif 表情包